The Invisible Fist Hitting Your Designs [Midweek Meander]


Hello Reader,

Congrats on surviving Monday and crushing Tuesday.

Now, Wednesday beckons you to take a break and step into a pattern of discovery.

Welcome to the Midweek Meander.

Did someone forward this to you? Please consider subscribing.

It happened in an instant.

At exactly 8:28 a.m., the ground beneath Puget Sound didn’t just shake—it revolted. In one violent, 6.7-magnitude shudder, Mother Nature reminded Western Washington exactly who’s in charge. Buildings cracked like eggshells. Nerves shattered. Seven people lost their lives.

I’m not calling out that earthquake because it was unique. I’m calling it out because it happened on today’s date—a useful reminder that these events aren’t rare anomalies.

Whether it’s the sudden jolt of an earthquake or the invisible, relentless fist of a 100-mph wind, lateral loads are not a theory. They are a recurring fact of life that can turn your hard work into a pile of rubble in seconds.

For residential designers, that’s where brace wall plans stop being a code exercise and become part of our professional duty of care.

We’re going to dive deep into the technical "how-to" of protecting your designs from these forces so you can fulfill your professional duty of care with absolute confidence.

But first, I have to tell you about a detached garage I was finishing up in Michigan earlier this week. It was a straightforward project in a state where we usually worry more about heavy snow than shifting earth.

As I laid out the walls, it hit me how long it had been since I’d really rolled up my sleeves on prescriptive wall bracing; most of my recent work has involved reinforced CMU, where the lateral strategy lives in grout and rebar more than in braced wall panels.

That little moment of, “I need to brush up on this,” sent me back to the IRC and the APA (The Engineered Wood Association) wall bracing tools. And as I walked through the process—identifying braced wall lines, checking required lengths, and making sure the plan actually offered enough real estate for panels—I realized something: if someone who lives in this world every day can drift away from the nuts and bolts of bracing, it’s probably happening to a lot of us.

Even if you never work in a seismic “hot spot,” you still design in a lateral world.

The same braced wall systems that help a house stay square in an earthquake are the systems that keep it standing when the wind decides to test it from the side.

  • Earthquakes shove the mass of the building back and forth at the foundation.
  • Wind pushes and sucks on walls and roofs, trying to rack and overturn them.

In both cases, if there isn’t a clear, continuous lateral load path—roof to walls to foundation—the building tries to become a parallelogram instead of a rectangle. Your brace wall plan is, in essence, a map of that path.

That’s why I don’t see the April 29, 1965, quake as a “Seattle story.” I see it as a reminder that our drawings either acknowledge lateral forces or politely pretend they don’t exist.

What the engineer owns vs. what you own

Most AIBD members collaborate with structural engineers, especially on larger or more complex projects. That’s good practice. The engineer is responsible for:

  • Verifying the structure will resist loads within the applicable code.
  • Sizing braced wall panels, connectors, and hold-downs when design goes beyond prescriptive limits.
  • Providing sealed structural documents where required by law.

But that does not mean the designer gets to say, “That’s the engineer’s problem,” and mentally clock out. You still own:

  • The building configuration: long, skinny footprints; big openings; tall great rooms; minimal solid wall; heavy claddings. These are architectural decisions that can either support or sabotage a bracing strategy.
  • The opportunity for braced wall lines: where you place hallways, stairs, and solid wall segments either creates natural bracing corridors or paints the engineer into a corner.
  • The clarity of the documentation: your architectural sheets must actually show where the braced wall lines and panels live, and they must align with whatever the engineer has designed.

Professionally, we should aim for “intentional collaboration,” not “hand-off and hope.” That means being literate in wall bracing, even when an engineer ultimately signs and seals.

If this is the first time you're hearing about this, may I suggest a video titled Structural Engineer vs Architect - Design Meeting (00:25:40)? It explains the importance of tracking loads from the roof down to a predictable "dance floor" (the foundation) early in the schematic phase.

Prescriptive bracing: when you can do it yourself

I’d say a residential designer needs “fluent literacy,” not “PhD-level” knowledge, in wall bracing.

The IRC gives a surprisingly robust prescriptive framework for braced wall design. For a large percentage of “typical” homes designed by AIBD members—one or two stories, conventional framing, reasonable spans, adequate solid wall—prescriptive bracing is not only allowed, it’s exactly what the code expects.

When your project stays within the IRC limits for:

  • Building size and height
  • Wind speed and seismic category
  • Regularity of the plan and elevation
  • Spacing and length of braced wall lines

…you can use the code’s “cookbook” to design and document the braced wall system yourself. You don’t automatically need an engineer to lay out every braced wall panel. You do need the discipline to follow the process and show it clearly on the drawings.

That’s where the APA wall bracing tools really shine.

APA and its partners have done something very friendly for residential designers: they’ve taken the IRC wall bracing provisions and turned them into step‑by‑step, visual, and interactive tools.

Beginning with the video Wall Bracing Basics (00:05:35), by Bob Clark, a long-time friend and AIBD advocate. This short introduction to wall bracing with wood structural panels covers key wall bracing principles using real-world examples from the devastating tornadoes.

From there, you can dig deeper via the APA's 2018 IRC Wall Bracing Webinar Series, a five-part webinar series that covers the 2018 IRC wall bracing provisions. It begins with a one-hour introductory session covering load path, lateral forces, and limitations to wall bracing. The other four sessions address related topics, including the simplified wall bracing method and bracing for higher seismic and wind zones.

Finally, all this prepares you to utilize the APA Wall Bracing Calculator.

  • Walks you through identifying braced wall lines in each direction.
  • Helps you determine the required length of the braced wall along each line based on wind, seismic, story level, and spacing.
  • Guides you in choosing bracing methods and laying out braced wall panels to meet or exceed those required lengths.
  • Provides diagrams and examples that make it much easier to visualize how bracing wraps around the plan rather than just along a single wall.

In practical terms, for a “typical” house, that means:

  • You can sketch an initial brace wall concept while you’re still in design development.
  • You can check whether your current layout offers enough real estate for the needed bracing before you fall in love with an all-glass corner or a garage front made entirely of doors.
  • You can produce a brace wall plan that will make sense to your builder, your plan reviewer, and—if involved—your structural engineer.

Think of the APA wall bracing calculator as a bridge between the text of the IRC and the reality of your construction documents. It’s a way to turn “I think this will work” into “I’ve actually checked this against the code logic.”

For more experienced design professionals who are familiar with wall bracing, there's a free wall bracing calculator quick-start guide.

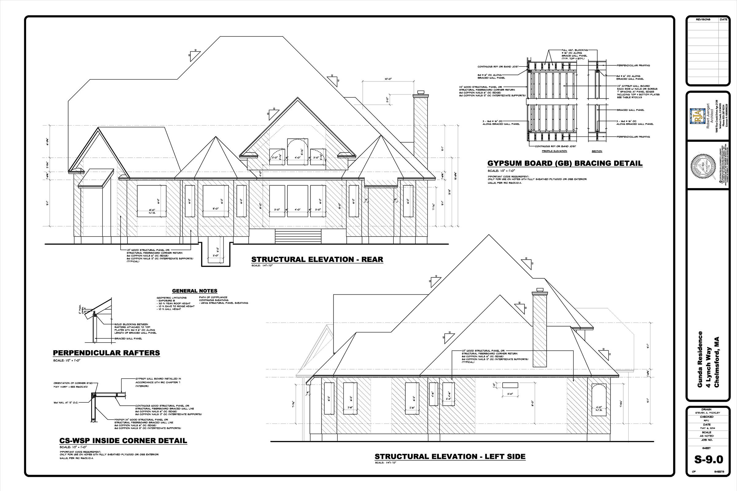
Once you've determined your bracewall methods and the calculator establishes your brace wall panel needs and locations, the next step is to communicate all this information in the form of an architectural drawing.

Click here for two examples: a more complicated example of a home in Massachusetts, and a simpler one I created for a house in Prince George's County, MD.

I almost forgot. The details in the examples, like the one above, were downloaded directly from the APA website and then edited to meet the needs and conditions of each project.

With nearly 200 details available in DWG, DXF, and PDF formats, you'll have comprehensive coverage for almost any scenario you'll encounter when framing a house.

There isn’t a central dataset that says “X% of U.S. municipalities now require brace wall plans,” but there are strong indicators of an upward trend.

Local jurisdictions are increasingly issuing their own wall-bracing handouts and checklists, which usually means it has become a recurring pain point in plan review.

Larimer County, Colorado, "Wall Brace Design" handout
Commerce City, Colorado, wall bracing design guide
Wayzata, Minnesota, wall bracing panel requirements

Here are the key points I’d like you to walk away with:

  • Lateral loads are a given, not a surprise. Earthquakes, hurricanes, and high‑wind events keep happening. Our job is to design as if we know something will come, somewhere, sometime.
  • Wall bracing is about the whole system. Whether the lateral shove comes from a Puget Sound quake or a Gulf Coast storm, your brace wall plan is the backbone that keeps the house square.
  • You don’t always need an engineer to lay it out. For many typical homes within IRC limits, a competent residential designer can use prescriptive bracing—especially with tools like the APA wall bracing calculator—to design and document the system.
  • You do need to know your threshold. Once you step outside prescriptive geometry, loads, or materials, that’s when you move from “designer with a calculator” to “designer working hand‑in‑hand with an engineer.”
  • The APA calculator is a practical, everyday tool. It turns wall-bracing theory into a concrete workflow for your current projects, helping you design smarter and document more clearly.

Your call to action this week

To make this actionable (and not just another interesting Meander), here’s what I’m asking you to do over the next week:

  1. Take one current project and sketch the braced wall story.
    On a printed or digital floor plan, draw the braced wall lines you think you’ll rely on. Mark where the panels might go. Don’t worry about perfection yet—just make your intent visible.
  2. Run that project through the APA wall bracing workflow.
    Use the APA wall bracing calculator and guide for a single floor. Follow the steps: identify braced wall lines, input loads, determine required lengths, and compare them to the panels you’ve placed. Adjust the plan as needed.
  3. Translate the results into a real brace wall plan sheet.
    Add a dedicated brace wall plan (or clearly annotated bracing information) to your permit set:
    • Braced wall lines traced and labeled.
    • Braced wall panels identified by method and length.
    • Keynotes pointing to details and typical sections.
  4. If an engineer is involved, share your work.
    Instead of sending only “pretty plans,” send your brace wall intent with the project and ask, “Does this line up with how you’d approach the lateral system?” You’ll have a much better conversation, and you’ll learn where your prescriptive instincts are strong and where they need refining.

If enough of us do this, we raise the baseline of practice across the profession. We’ll move from “I hope the bracing works out” to “I deliberately designed and documented a lateral system that belongs in this house.”

Because when the ground moves or the wind howls, our clients aren’t thinking about our pretty renderings.

Go forth and design boldly,

Steve Mickley

Executive Director, American Institute of Building Design

Email: steve.mickley@AIBD.org

Let's chat: AIBD.org/meetsteve

Share the Meander with your friends! Just copy and paste this link to spread the word:

https://american-institute-of-building-design-aibd.kit.com/posts/meander-2026-04-29

Other Important Reminders

Thank you to our AIBD Corporate Partners.

Their generous support champions our profession, and we encourage you to support them in return. Atlas Roofing, Chief Architect, Cogram, GreenHome Institute, JDS Consulting, MiTek, National Association of Home Builders, RL Mace Universal Design Institute, Shelter, and SoftPlan Systems,


Want to get fewer emails from us? Update your profile to choose your preferences.

If you don't want to receive ANY emails from us, please Unsubscribe.

Contact us at info@aibd.org, 800.366.2423, or 110 Front Street, Suite #300, Jupiter, FL 33477.

Any opinions expressed in this email are those of the authors or persons quoted and are not necessarily those of the AIBD.

One more thing—we want to lead with transparency. AI was used in the editing of this email.

American Institute of Building Design (AIBD)

The American Institute of Building Design (AIBD) is a professional association that promotes the highest standards of excellence in residential building design. AIBD offers a variety of resources to its members, including continuing education, networking opportunities, and marketing assistance. AIBD is a valuable resource for anyone interested in a career in residential building design. If you want to improve your skills, network with other professionals, and stay up-to-date on the latest trends, AIBD is the perfect organization for you.

Read more from American Institute of Building Design (AIBD)

We have a packed lineup of webinars coming up and we don’t want you to miss a single one. Here’s everything on the calendar: TODAY – CE Watch Party: Structural Engineer vs Architect – Design Meeting (1.0 P3-CE) Tuesday, April 28 | 2:00 PM EDT | 1 Hour A structural engineer is a crucial part of the design team for all residential work in the studio — but how often do you actually get to sit in on that first meeting? In this CE Watch Party, you’ll join the kick-off meeting with the structural...

April 27, 2026, Edition #CreatingWherePeopleLive This weekly newsletter is created by and for those designing homes in North America. Its editorial staff is the American Institute of Building Design, Inc., the premier association of residential design professionals. Here's what you get: Field Notes Nuts & Bolts Highlights Workshops & Gatherings What We're Up To Amazing sponsors who help keep this newsletter free for the industry. Let's dive in. Email servers may truncate this newsletter...

logo

Job Seekers: Share what is new with you! My Account | Job Search | Manage Resumes | Job Alerts If it's been some time since you updated your profile or resume on the AIBD Career Center then it is time for a refresh to showcase new promotions, achievements, projects, and skills. If you have: Moved to a new organization or received a promotion. Completed a new project or achieved new results. Learned a new skill, furthered your education, or obtained a new certification. Recruiters are actively...